dibeo.at
dibeo.at

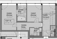
Upper Level Highlight

1010 Wien, Innere Stadt

Upper Level HighlightUpper Level HighlightUpper Level HighlightUpper Level HighlightUpper Level HighlightUpper Level HighlightUpper Level HighlightUpper Level HighlightUpper Level HighlightUpper Level HighlightUpper Level HighlightUpper Level HighlightUpper Level HighlightUpper Level HighlightUpper Level HighlightUpper Level HighlightUpper Level HighlightUpper Level HighlightUpper Level HighlightUpper Level HighlightUpper Level HighlightUpper Level HighlightUpper Level HighlightUpper Level HighlightUpper Level HighlightUpper Level HighlightUpper Level HighlightUpper Level HighlightUpper Level HighlightUpper Level HighlightUpper Level HighlightUpper Level HighlightUpper Level Highlight

126 m²3 Zimmer€ 2.490.000

Finanzierung berechnen mit durchblicker
Zur Merkliste hinzufügen
Kosten
Kaufpreis€ 2.490.000
Provision
3.00 %
Vertragsart
, Kauf
Wohnfläche
126 m2 (3 Zimmer)
Freifläche
, Terrasse
Objektart
Dachgeschosswohnung
Bauart
Altbau: 2011
Energie
HWB70 kWh/m²
HWB-KlasseC
fGEE1,37
fGEE-KlasseC
Verfügbar
ab sofort
Die Zelinkagasse - ein Ort, der mehr ist als nur eine Adresse.
In einem der schönsten Gretzl Wiens, eingebettet zwischen dem leisen Flüstern der Altstadt und dem lebendigen Puls des Donaukanals, liegt die Zelinkagasse – eine Adresse, die nicht nur geografisch im Herzen der Stadt liegt, sondern auch im Herzen all jener, die sie einmal erlebt haben.

Top Features:
+ Traumhafte Penthouse Maisonette mit Top Ausstattung
+ Loftcharakter auf oberer Wohnebene
+ Exklusiver Palais Altbau in Traumlage
+ Hochwertiger Dachausbau 2011
+ Perfekt geschnittener Wohn- & Lounge Bereic..
  • MwSt. Satz20,00 %
Kontaktieren Sie bitte den Anbieter für weitere Details zur Adresse.
Zur Merkliste hinzufügen
Anbieter kontaktieren
Auswahl ändern
paulochsenhofer
Anbieter

Paul Ochsenhofer

RE/MAX Real Experts
Telefon
+43 (0)664/ 415...
Anbieter kontaktieren
Bitte um Zusendung von Unterlagen!
Bitte um einen Besichtigungstermin!
Bitte um einen Rückruf unter …
anrufen