Anlegerwohnung - zentral - provisionsfrei (Angerweg 2 - Top 13)
4694 Ohlsdorf













Objektinformation
Kosten
Kaufpreis€ 334.200
Vertragsart
, Kauf
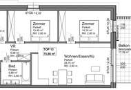
Wohnfläche
75,98 m2 (3 Zimmer)
Freifläche
, Balkon
Objektart
Etagenwohnung
Energie
HWB40 kWh/m²
Beschreibung
Neubauprojekt Ohlsdorf, Angerweg 2
Top 13 ist eine attraktive 3-Zimmer-Wohnung im 1. Obergeschoss mit einem großzügigen Balkon, der viel Platz für entspannte Stunden im Freien bietet. Der offene Wohnbereich schafft eine moderne, einladende Atmosphäre. Das Badezimmer kann nach Wunsch mit einer Dusche oder Badewanne ausgestattet werden. Ein großzügiger Abstellraum sorgt für praktischen Stauraum und zusätzlichen Komfort.
Kaufpreis netto: € 334.200,01
zuzüglich 20 % Ust = € 401.040,01
Kaufpreis für Eigennutzer: € 381.640,00
Attraktive Anlegerwohnungen in Ohlsdorf – I..
Top 13 ist eine attraktive 3-Zimmer-Wohnung im 1. Obergeschoss mit einem großzügigen Balkon, der viel Platz für entspannte Stunden im Freien bietet. Der offene Wohnbereich schafft eine moderne, einladende Atmosphäre. Das Badezimmer kann nach Wunsch mit einer Dusche oder Badewanne ausgestattet werden. Ein großzügiger Abstellraum sorgt für praktischen Stauraum und zusätzlichen Komfort.
Kaufpreis netto: € 334.200,01
zuzüglich 20 % Ust = € 401.040,01
Kaufpreis für Eigennutzer: € 381.640,00
Attraktive Anlegerwohnungen in Ohlsdorf – I..
Mehr
Auswahl ändern
Anbieter

Anbieter
Christian Sammer
RE/MAX TraunseeTelefon
+43 650 31 ...

Anbieter kontaktieren
Virtuelle Besichtigung
