Geschäftslokal in der Josefstädter Straße
1080 Wien, Josefstadt






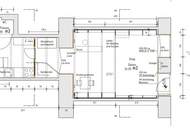
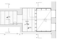
34 m²1 Räume€ 299.000
Objektinformation
Kosten
Kaufpreis€ 299.000
Nebenkosten€ 135,46
Provision
3% des Kaufpreises plus 20% USt.
Vertragsart
, Kauf
Nutzfläche
34 m2 (1 Zimmer)
Energie
HWB207,2 kWh/m²
HWB-Klassef
fGEE1,42
fGEE-Klassec
Beschreibung
Zum Verkauf gelangt ein nettes saniertes Geschäftslokal in der Josefstadt, zwischen Gürtel und Ringstraße, in einer sehr frequentierten Straße.
Das Geschäftslokal besticht durch seine tolle Verkehrsanbindung:
- 5 Gehminuten bis zum Hamerlingplatz
- Straßenbahnlinien 5 und 33 vor der Türe,
- ca. 5 Gehminunten zur U6
Achtung! Keine Gastronomie- Nutzung!
Kaufpreis lastenfrei: € 299.000,-, zuzüglich Kaufnebenkosten.
Nebenkosten bei Kaufvertrag:
3% Maklerhonorar (Bemessungsgrundlage Kaufpreis netto) zzgl. 20% USt
Mehr
Weitere Preisinformationen
- MwSt. gesamt€ 27,09
Auswahl ändern
Anbieter

Anbieter
Nataliya Maystruk
RAIFFEISEN IMMOBILIEN VERMITTLUNG GMBHTelefon
+43 664 60 517 ...

Anbieter kontaktieren
