*Wohnen über den Dächern Wiens - Exklusive Dachgeschosswohnungen mit traumhaften Freiflächen*
1100 Wien, Favoriten, Josef-Deutsch-Strasse





























Objektinformation
Kosten
Kaufpreis€ 1.037.000
Kaufpreis / m²€ 6.930,89
Provision
3%
Vertragsart
, Kauf
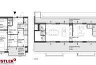
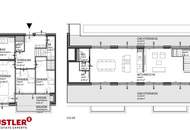
Wohnfläche
149,62 m2 (4 Zimmer)
Freifläche
, Balkon, Terrasse (2)
Energie
HWB21,3 kWh/m²
HWB-KlasseA
fGEE0,75
fGEE-KlasseA
Verfügbar
ab sofort
Beschreibung
Objektbeschreibung:
In der Josef-Deutsch-Straße 3-5 befinden sich exklusive Eigentumswohnungen, die höchsten Wohnkomfort mit moderner Architektur und urbaner Lebensqualität vereinen.
Die Wohnungen überzeugen durch durchdachte Grundrisse, eine hochwertige Ausstattung und lichtdurchflutete Räume, die eine offene und einladende Wohnatmosphäre schaffen. Die großzügigen Freiflächen in Form von Loggien, Balkonen oder Terrassen bieten atemberaubende Ausblicke über die Stadt und laden zum Entspannen ein.
Hochwertiges Wohnen im Erstbezug
Das exklusive Neubauprojekt b..
In der Josef-Deutsch-Straße 3-5 befinden sich exklusive Eigentumswohnungen, die höchsten Wohnkomfort mit moderner Architektur und urbaner Lebensqualität vereinen.
Die Wohnungen überzeugen durch durchdachte Grundrisse, eine hochwertige Ausstattung und lichtdurchflutete Räume, die eine offene und einladende Wohnatmosphäre schaffen. Die großzügigen Freiflächen in Form von Loggien, Balkonen oder Terrassen bieten atemberaubende Ausblicke über die Stadt und laden zum Entspannen ein.
Hochwertiges Wohnen im Erstbezug
Das exklusive Neubauprojekt b..
Mehr
Weitere Preisinformationen
- Provision (netto)€ 31.110,00
- Provision (brutto)€ 37.332,00
Auswahl ändern
Anbieter

Anbieter
Fabian Doll
Rustler Immobilientreuhand Gesellschaftm.b.H.Telefon
+43 676 834 ...
Anbieter kontaktieren