ERSTBEZUG in sanierten Altau | Sonnige 3-Zimmerwohnung an der U1
1100 Wien, Favoriten























Objektinformation
Kosten
Kaufpreis€ 319.000
Kaufpreis / m²€ 4.943,44
Provision
3%
Vertragsart
, Kauf
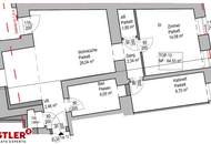
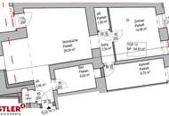
Wohnfläche
64,53 m2 (2 Zimmer)
Bauart
Altbau
Energie
HWB54,35 kWh/m²
HWB-KlasseC
fGEE0,9
fGEE-KlasseB
Verfügbar
ab sofort
Beschreibung
Objektbeschreibung
In einer ruhigen Seitengasse, und doch mitten im Leben, erwartet Sie ein liebevoll saniertes Gründerzeitwohnhaus mit Geschichte und Charakter. Die Liegenschaft in der Senefeldergasse wurde umfassend saniert und überzeugt durch stilvolle Details und moderner Infrastruktur. Im neu ausgebauten Dachgeschoss befindet sich das absolute Highlight - 4 Maisonettewohnungen mit einladenden Terrassenflächen, sowie eine kompakte moderne 3-Zimmerwohnung.
Das Gebäude wurde von Grund auf saniert - verfügt nun über neu geschaffene Kellerabteile, Aufzug, ein einladen..
In einer ruhigen Seitengasse, und doch mitten im Leben, erwartet Sie ein liebevoll saniertes Gründerzeitwohnhaus mit Geschichte und Charakter. Die Liegenschaft in der Senefeldergasse wurde umfassend saniert und überzeugt durch stilvolle Details und moderner Infrastruktur. Im neu ausgebauten Dachgeschoss befindet sich das absolute Highlight - 4 Maisonettewohnungen mit einladenden Terrassenflächen, sowie eine kompakte moderne 3-Zimmerwohnung.
Das Gebäude wurde von Grund auf saniert - verfügt nun über neu geschaffene Kellerabteile, Aufzug, ein einladen..
Mehr
Weitere Preisinformationen
- Provision (netto)€ 9.570,00
- Provision (brutto)€ 11.484,00
Auswahl ändern
Anbieter

Anbieter
Berend Jäger
Rustler Immobilientreuhand Gesellschaftm.b.H.Telefon
+43 676 834 ...
Anbieter kontaktieren