Anleger aufgepasst! Interessantes Paket aus Büro- und Lagerflächen + TOP Lage in 1160 Wien + Renoviertes Gebäude + Beste Infrastruktur und Anbindung!
1160 Wien, Ottakring, Hasnerstraße















438,6 m²€ 490.000
Objektinformation
Kosten
Kaufpreis€ 490.000
Kaufpreis / m²€ 1.117,19
Provision
3% des Kaufpreises zzgl. 20% USt.
Vertragsart
, Kauf
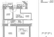
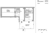
Nutzfläche
438,6 m2
Freifläche
, Garten (15,67m²)
Bauart
Altbau
Energie
HWB145,2 kWh/m²
HWB-KlasseE
fGEE1,48
fGEE-KlasseC
Energieausweis bis2032-10-20
Beschreibung
Anleger aufgepasst! Interessantes Paket aus Büro- und Lagerflächen + TOP Lage in 1160 Wien + Renoviertes Gebäude + Beste Infrastruktur und Anbindung!
Zum Verkauf steht ein attraktives Paket aus Büro - und Lagerflächen in 1160 Wien!
Facts:
+ Die Flächen sind befristet vermietet bis 30.06.2028. Eine vorzeitige Rückstellung bis 30.06.2026 gilt als sehr wahrscheinlich!
+ Nutzfläche: ca. 430,71m² + ca. 15,67m² (gemäß Nutzwertgutachten)
+ Im Kellerbereich sind Einlagerungsräume zu den einzelnen WE-Objekten zugeordnet.
+ Mieteinnahmen: € 955,80...
Zum Verkauf steht ein attraktives Paket aus Büro - und Lagerflächen in 1160 Wien!
Facts:
+ Die Flächen sind befristet vermietet bis 30.06.2028. Eine vorzeitige Rückstellung bis 30.06.2026 gilt als sehr wahrscheinlich!
+ Nutzfläche: ca. 430,71m² + ca. 15,67m² (gemäß Nutzwertgutachten)
+ Im Kellerbereich sind Einlagerungsräume zu den einzelnen WE-Objekten zugeordnet.
+ Mieteinnahmen: € 955,80...
Mehr
Lage
Brunnenmarkt um´s Eck!
Dieses WE-Paket befindet sich im citynahen Teil des 16.Bezirks und im Zentrum zahlreicher Hot Spots! Alles Geschäfte des täglichen Bedarfs befinden sich in Gehweite, ebenso mehrere Schulen, Kindergärten, eine Apotheke sowie eine Bank.
Wenige Gehminuten: Supermärkte, Apotheke, Banken, Ärzte
Für den abendlichen Einkauf eignet sich die Lugner City, deren Geschäfte täglich bis 21:00 Uhr geöffnet haben bzw. der neue Westbahnhof ebenso mit zahlreichen Einkaufsmöglichkeiten. Die größte Einkaufsstraße Wien´s, die neue Mariahilferstraße, befindet sich auch nur einen Katzensprung entfernt und auf der Thaliastraße wird man auch fündig, egal was man sucht!
Hot Spots ganz in der Nähe: Brunnenmarkt und Yppenplatz, Ottakringer Brauerei, Schmelz bzw. Sportuniversität an der Schmelz, Lugner City bzw. Kino, Stadthalle, Hauptbücherei uvm.
Naturliebhaber kommen voll auf Ihre Kosten! Der nahe Wilhelminenberg oder die Steinhof Gründe laden zu ausgiebigen Ausflügen ein. Danach kann man die Seele in einem der zahlreichen Heurigen mit Blick über ganz Wien baumeln lassen.
In diesem urbanen Grätzel trifft man auf Kunst und Kulinarik, auf Moderne und auf das alte Ottakring, auf kreative Ecken, tolle Lokale und viele von der Stadt neu gestaltete Platzerl!
Öffentliche Anbindung: Fahrrad Highway direkt auf der Hasnerstraße, Bus 10A + 48A, Straßenbahn 46 + 9, Bus N46, U3
Dieses WE-Paket befindet sich im citynahen Teil des 16.Bezirks und im Zentrum zahlreicher Hot Spots! Alles Geschäfte des täglichen Bedarfs befinden sich in Gehweite, ebenso mehrere Schulen, Kindergärten, eine Apotheke sowie eine Bank.
Wenige Gehminuten: Supermärkte, Apotheke, Banken, Ärzte
Für den abendlichen Einkauf eignet sich die Lugner City, deren Geschäfte täglich bis 21:00 Uhr geöffnet haben bzw. der neue Westbahnhof ebenso mit zahlreichen Einkaufsmöglichkeiten. Die größte Einkaufsstraße Wien´s, die neue Mariahilferstraße, befindet sich auch nur einen Katzensprung entfernt und auf der Thaliastraße wird man auch fündig, egal was man sucht!
Hot Spots ganz in der Nähe: Brunnenmarkt und Yppenplatz, Ottakringer Brauerei, Schmelz bzw. Sportuniversität an der Schmelz, Lugner City bzw. Kino, Stadthalle, Hauptbücherei uvm.
Naturliebhaber kommen voll auf Ihre Kosten! Der nahe Wilhelminenberg oder die Steinhof Gründe laden zu ausgiebigen Ausflügen ein. Danach kann man die Seele in einem der zahlreichen Heurigen mit Blick über ganz Wien baumeln lassen.
In diesem urbanen Grätzel trifft man auf Kunst und Kulinarik, auf Moderne und auf das alte Ottakring, auf kreative Ecken, tolle Lokale und viele von der Stadt neu gestaltete Platzerl!
Öffentliche Anbindung: Fahrrad Highway direkt auf der Hasnerstraße, Bus 10A + 48A, Straßenbahn 46 + 9, Bus N46, U3
Auswahl ändern
Anbieter

Anbieter
Samir Agha-Schantl
Schantl ITH Immobilientreuhand GmbHTelefon
0043 660 4...

Anbieter kontaktieren