Kfz-Stellplatz in Toplage!
1070 Wien, Neubau, Zieglergasse










€ 57.500
Objektinformation
Kosten
Kaufpreis€ 57.500
Provision
3% des Kaufpreises zzgl. 20% USt.
Vertragsart
, Kauf
Größe
keine Angabe
Bauart
Altbau
Energie
HWB192,3 kWh/m²
HWB-KlasseE
fGEE2,67
fGEE-KlasseE
Energieausweis bis2033-11-19
Beschreibung
Bei dieser Liegenschaft handelt es sich um ein schönes Jahrhundertwendehaus mit Innenhof!
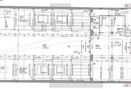
Zum Verkauf stehen insgesamt 29 Kfz-Stellplätze in einer ehemaligen Druckerei. Die Garage bietet ein außergewöhnliches Ambiente mit einer Deckenhöhe von bis zu 8 Meter!
Die Stellplatz-, bzw. die Einfahrtsbreite beträgt 2,30 Meter.
Ein Kfz-Stellplatz kann um € 57.500,- erworben werden, zwei noch zum Verkauf stehende größere Stellplätze kosten € 65.000,-!.
Gerne übersenden wir Ihnen weitere Informationen und stehen für einen Besichtigungstermin Ihnen zur Ver..
Zum Verkauf stehen insgesamt 29 Kfz-Stellplätze in einer ehemaligen Druckerei. Die Garage bietet ein außergewöhnliches Ambiente mit einer Deckenhöhe von bis zu 8 Meter!
Die Stellplatz-, bzw. die Einfahrtsbreite beträgt 2,30 Meter.
Ein Kfz-Stellplatz kann um € 57.500,- erworben werden, zwei noch zum Verkauf stehende größere Stellplätze kosten € 65.000,-!.
Gerne übersenden wir Ihnen weitere Informationen und stehen für einen Besichtigungstermin Ihnen zur Ver..
Mehr
Lage
Die Liegenschaft befindet sich in einer beliebten und ruhigen Seitengasse des 7. Bezirks, in der Zieglergasse, zwischen Kandlergasse und Westbahnstraße gelegen.
Die Infrastruktur ist als ausgezeichnet zu bewerten - in unmittelbarer Umgebung befinden sich unter anderem Museumsquartier, Spittelberg, sowie die Neubaugasse und die Mariahilfer Straße.
Die Nahversorgung ist somit durch zahlreiche Geschäfte und Gastronomiebetriebe aller Art bestens gegeben.
Die Anbindung an das öffentliche Verkehrsnetz ist ebenso sehr gut! (U3 und U6 - zukünftig auch die U5, Straßenbahnlinie 49, Autobuslinie 48A und 13A).
Die Infrastruktur ist als ausgezeichnet zu bewerten - in unmittelbarer Umgebung befinden sich unter anderem Museumsquartier, Spittelberg, sowie die Neubaugasse und die Mariahilfer Straße.
Die Nahversorgung ist somit durch zahlreiche Geschäfte und Gastronomiebetriebe aller Art bestens gegeben.
Die Anbindung an das öffentliche Verkehrsnetz ist ebenso sehr gut! (U3 und U6 - zukünftig auch die U5, Straßenbahnlinie 49, Autobuslinie 48A und 13A).
Auswahl ändern
Anbieter

Anbieter
Christoph Kral
WINEGG Makler GmbHTelefon
+43 676 6...

Anbieter kontaktieren