Sonnige Südhang-Lage in Liebenfels: Haus mit 6 Zimmern und toller Aussicht, auf 3.730 m2 Baugrund
9556 Liebenfels
























Objektinformation
Kosten
Kaufpreis€ 530.000
Provision
3 % zzgl. 20% USt.
Vertragsart
, Kauf
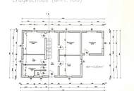
Wohnfläche
175 m2 (6 Zimmer)
Grundstück
4.330 m2
Freifläche
, Balkon, Terrasse
Energie
HWB181 kWh/m²
fGEE1,91
fGEE-KlasseD
Energieausweis bis2035-08-05
Beschreibung
HAUPTHAUS mit Baugrund:
Das große Haus (Ziegel-Massivbau), mit rund 175 m2 Wohnnutzfläche auf 2 Etagen, wurde vor ca. 15 Jahren mit Vollwärmeschutz und ca. 20 Jahren einem neuen Dach ausgestattet. Es bietet eine sonnige, unverbaubare Aussicht ins Glantal und verfügt über einen großen Baugrund (auch teilbar), der für Menschen optimal ist, die ihre Zukunft als Selbstversorger planen, viel Platz für ihre Kinder haben wollen oder einfach einen großen Garten lieben. Ob man Gemüse oder Obst anbauen möchte, ein paar Tiere halten oder irgendwann ein weiteres Haus darauf bauen möchte - es gibt v..
Das große Haus (Ziegel-Massivbau), mit rund 175 m2 Wohnnutzfläche auf 2 Etagen, wurde vor ca. 15 Jahren mit Vollwärmeschutz und ca. 20 Jahren einem neuen Dach ausgestattet. Es bietet eine sonnige, unverbaubare Aussicht ins Glantal und verfügt über einen großen Baugrund (auch teilbar), der für Menschen optimal ist, die ihre Zukunft als Selbstversorger planen, viel Platz für ihre Kinder haben wollen oder einfach einen großen Garten lieben. Ob man Gemüse oder Obst anbauen möchte, ein paar Tiere halten oder irgendwann ein weiteres Haus darauf bauen möchte - es gibt v..
Mehr
Lage
Ruhig / ländlich
Sonnige Hanglage / Aussichtslage
Nähe zu St. Veit - sehr gute Infrastruktur
Anbindung: 10 Min. fußläufig zur Bushaltestelle, 11 Min. zum Bahnhof St. Veit a. d. Glan
Sonnige Hanglage / Aussichtslage
Nähe zu St. Veit - sehr gute Infrastruktur
Anbindung: 10 Min. fußläufig zur Bushaltestelle, 11 Min. zum Bahnhof St. Veit a. d. Glan
Ausstattung
Das Haus steht (bis auf Heizkörper, WC und Bad) leer
- Heizkörper nur in den EG-Räumen
- 2 Kaminanschlüsse (für Pellets- oder Schwedenöfen)
- Böden: Laminat und PVC
- Dach: Ziegeldach
- Fassade: 12 cm Vollwärmeschutz
- Garage: Es gibt eine separate Doppelgarage mit Grube, eine weitere Garage befindet sich im Kellergeschoß des Hauses
- Heizkörper nur in den EG-Räumen
- 2 Kaminanschlüsse (für Pellets- oder Schwedenöfen)
- Böden: Laminat und PVC
- Dach: Ziegeldach
- Fassade: 12 cm Vollwärmeschutz
- Garage: Es gibt eine separate Doppelgarage mit Grube, eine weitere Garage befindet sich im Kellergeschoß des Hauses
Zusatzinformationen
- Nicht barrierefrei
- 2 Wiesen-/Grünflächen: mit rd. 6.280 m2 und rd. 1.560 m2 im Paket enthalten
- Eigene Quelle
- TEILUNG des unbebauten Teilgrundstücks und Weiterverkauf ist möglich
BITTE KONTAKTIEREN SIE UNS bei allen Fragen zu Preis, Teilung und Ausstattung!
Auswahl ändern
Anbieter

Anbieter
Tanja Moritsch
Willi Mann Immobilien & Betriebsvermittlungs GmbHTelefon
004346...

Anbieter kontaktieren