AUGASSE 17 – Wohnen im Herzen von Wien-Alsergrund
1090 Wien, Alsergrund, Augasse






Objektinformation
Kosten
Kaufpreis€ 496.700
Provision
Provision bezahlt der Abgeber
Vertragsart
, Kauf
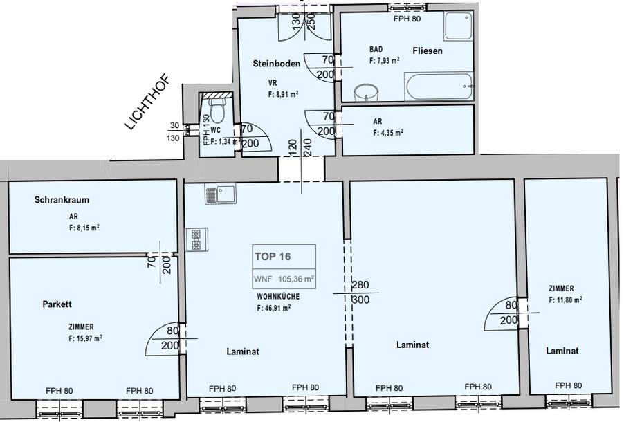
Wohnfläche
53,56 m2 (3 Zimmer)
Freifläche
, Balkon
Bauart
Neubau: 2026
Beschreibung
Zentrale Lage trifft zukunftssichere Qualität
Mitten im begehrten 9. Wiener Gemeindebezirk entsteht in der Augasse 17 ein modernes Neubauprojekt, das urbanes Leben, nachhaltige Bauweise und durchdachte Grundrisse perfekt vereint.
Insgesamt entstehen 81 freifinanzierte Eigentumswohnungen mit Größen von 39 bis 163 m² – vom kompakten 2-Zimmer-Apartment bis hin zur großzügigen 5-Zimmer-Familienwohnung. Fast jede Einheit verfügt über Balkon, Loggia, Terrasse oder Garten, wodurch Innen- und Außenräume fließend ineinander übergehen.
Das Projekt verbindet höchste Wohnqualität mit Nach..
Mitten im begehrten 9. Wiener Gemeindebezirk entsteht in der Augasse 17 ein modernes Neubauprojekt, das urbanes Leben, nachhaltige Bauweise und durchdachte Grundrisse perfekt vereint.
Insgesamt entstehen 81 freifinanzierte Eigentumswohnungen mit Größen von 39 bis 163 m² – vom kompakten 2-Zimmer-Apartment bis hin zur großzügigen 5-Zimmer-Familienwohnung. Fast jede Einheit verfügt über Balkon, Loggia, Terrasse oder Garten, wodurch Innen- und Außenräume fließend ineinander übergehen.
Das Projekt verbindet höchste Wohnqualität mit Nach..
Mehr
Auswahl ändern
Anbieter

Anbieter
Anna Gasienica-Fronek
EHL Wohnen GmbHTelefon
+436645...

Anbieter kontaktieren
Downloads zum Objekt