Wohnkomfort trifft Altbau-Charme
9184 St. Jakob im Rosental


































Objektinformation
Kosten
Kaufpreis€ 550.000
Kaufpreis / m²€ 3.117,91
Provision
3 % vom Kaufpreis zzgl. 20 % MwSt.
Vertragsart
, Kauf
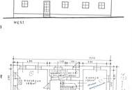
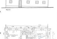
Wohnfläche
176,4 m2 (8 Zimmer)
Grundstück
1.682 m2
Freifläche
, Balkon, Terrasse (2)
Energie
HWB138,2 kWh/m²
HWB-KlasseD
fGEE2,1
fGEE-KlasseD
Verfügbar
ab sofort
Beschreibung
Wir präsentieren Ihnen die einzigartige Möglichkeit, ein Stück Geschichte zu erwerben. Willkommen in einer einzigartigen Immobilie, die Geschichte und Moderne perfekt miteinander vereint. Ursprünglich um ca. 1900 erbaut und im Laufe der Jahre liebevoll und sehr geschmackvoll saniert und erweitert.
Wohnkomfort trifft Altbau-Charme
Dieses Einfamilienhaus besticht durch seinen charmanten Charakter und bietet zugleich alle Annehmlichkeiten des modernen Wohnens eine perfekte Symbiose aus historischem Charme und modernem Luxus.
Das Haus bietet ein beeindruckendes Raumgefühl. De..
Wohnkomfort trifft Altbau-Charme
Dieses Einfamilienhaus besticht durch seinen charmanten Charakter und bietet zugleich alle Annehmlichkeiten des modernen Wohnens eine perfekte Symbiose aus historischem Charme und modernem Luxus.
Das Haus bietet ein beeindruckendes Raumgefühl. De..
Mehr
Lage
Die Immobilie in 9184 Mühlbach, besticht durch ihre idyllische Lage in einer ruhigen Wohngegend. Umgeben von malerischer Natur bietet sie einen herrlichen Blick auf die umliegenden Berge. Einkaufsmöglichkeiten, Schulen und öffentliche Verkehrsmittel sind in wenigen Minuten erreichbar. Ideal für Familien und Naturliebhaber, die eine perfekte Kombination aus Ruhe und guter Anbindung suchen.
Alles in Greifbarer Nähe:
Villach - ca. 15-20 min Fahrzeit
Velden am Wörthersee - ca. 10-15 min Fahrzeit
St.Jakob im Rosental - ca.5 min Fahrzeit
Rosegg - ca. 5min Fahrzeit
Drauradweg in wenigen Minuten Erreichbar
Alles in Greifbarer Nähe:
Villach - ca. 15-20 min Fahrzeit
Velden am Wörthersee - ca. 10-15 min Fahrzeit
St.Jakob im Rosental - ca.5 min Fahrzeit
Rosegg - ca. 5min Fahrzeit
Drauradweg in wenigen Minuten Erreichbar
Auswahl ändern
Anbieter

Anbieter
Daniel Schwarzmann
Meilenstein Realitäten GmbHTelefon
004366475...

Anbieter kontaktieren