Wohnkomfort trifft Altbau-Charme
9184 St. Jakob im Rosental


































Objektinformation
Kosten
Kaufpreis€ 610.000
Kaufpreis / m²€ 3.458,05
Provision
3 % vom Kaufpreis zzgl. 20 % MwSt.
Vertragsart
, Kauf
Wohnfläche
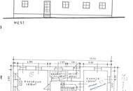
176,4 m2 (8 Zimmer)
Grundstück
1.682 m2
Freifläche
, Balkon, Terrasse (2)
Energie
HWB138,2 kWh/m²
HWB-KlasseD
fGEE2,1
fGEE-KlasseD
Verfügbar
ab sofort
Beschreibung
Ein Anwesen mit Seele. Ein Zuhause mit Geschichte. Ein Statement für Generationen.
Manche Immobilien sind Objekte, andere sind Kapitel eines Lebens.
Die „Kandolf Keusche“, ursprünglich um ca. 1900 errichtet, ist weit mehr als ein Haus – sie ist ein Stück gewachsene Geschichte. Über Jahrzehnte mit Feingefühl saniert, erweitert und architektonisch neu interpretiert, vereint dieses Anwesen heute historischen Charakter mit modernem High-End-Wohnkomfort auf beeindruckende Weise.
Hier betreten Sie keinen Raum. --- Sie betreten Atmosphäre.
Wohnen mit Charakter – Loftgefühl tr..
Manche Immobilien sind Objekte, andere sind Kapitel eines Lebens.
Die „Kandolf Keusche“, ursprünglich um ca. 1900 errichtet, ist weit mehr als ein Haus – sie ist ein Stück gewachsene Geschichte. Über Jahrzehnte mit Feingefühl saniert, erweitert und architektonisch neu interpretiert, vereint dieses Anwesen heute historischen Charakter mit modernem High-End-Wohnkomfort auf beeindruckende Weise.
Hier betreten Sie keinen Raum. --- Sie betreten Atmosphäre.
Wohnen mit Charakter – Loftgefühl tr..
Mehr
Lage
Die Immobilie in 9184 Mühlbach, besticht durch ihre idyllische Lage in einer ruhigen Wohngegend. Umgeben von malerischer Natur bietet sie einen herrlichen Blick auf die umliegenden Berge. Einkaufsmöglichkeiten, Schulen und öffentliche Verkehrsmittel sind in wenigen Minuten erreichbar. Ideal für Familien und Naturliebhaber, die eine perfekte Kombination aus Ruhe und guter Anbindung suchen.
Alles in Greifbarer Nähe:
Villach - ca. 15-20 min Fahrzeit
Velden am Wörthersee - ca. 10-15 min Fahrzeit
St.Jakob im Rosental - ca.5 min Fahrzeit
Rosegg - ca. 5min Fahrzeit
Drauradweg in wenigen Minuten Erreichbar
Alles in Greifbarer Nähe:
Villach - ca. 15-20 min Fahrzeit
Velden am Wörthersee - ca. 10-15 min Fahrzeit
St.Jakob im Rosental - ca.5 min Fahrzeit
Rosegg - ca. 5min Fahrzeit
Drauradweg in wenigen Minuten Erreichbar
Auswahl ändern
Anbieter

Anbieter
Daniel Schwarzmann
Meilenstein Realitäten GmbHTelefon
004366475...

Anbieter kontaktieren