Stilvolle Familienresidenz mit Terrasse und klarer Raumstruktur in Tulln an der Donau
3430 Tulln an der Donau





Objektinformation
Kosten
Kaufpreis€ 1.094.900
Provision
3,00 % des Kaufpreises zzgl. 20 % USt.
Vertragsart
, Kauf
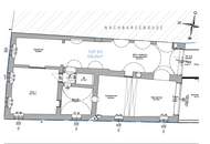
Wohnfläche
170,47 m2
Freifläche
, Terrasse
Bauart
Neubau
Beschreibung
Großzügigkeit, klare Linien und ein durchdachtes Wohnkonzept prägen diese hochwertige Wohnung und verleihen ihr eine besondere Wohnqualität. Bereits die beeindruckenden Raumhöhen von rund drei Metern schaffen ein luftiges Ambiente und unterstreichen den eleganten Charakter der Räume. Die weitläufige Diele bietet nicht nur ausreichend Platz für eine repräsentative Garderobenlösung, sondern fungiert auch als verbindendes Element zwischen den einzelnen Wohnzonen.
Der offen gestaltete Wohn- und Essbereich bildet das kommunikative Zentrum der Wohnung und überzeugt mit seiner Größe und Vi..
Mehr
Lage
Das Projekt entsteht in zentralster Lage von Tulln – unmittelbar am traditionsreichen Hauptplatz Tulln. Dieser geschichtsträchtige Platz bildet seit jeher den lebendigen Mittelpunkt der Stadt und vereint architektonischen Charme mit einem vielseitigen urbanen Angebot. Stilvolle Altbauten, einladende Schanigärten sowie zahlreiche Einkaufsmöglichkeiten und Gastronomiebetriebe prägen das stimmungsvolle Ambiente.
Die ausgezeichnete Infrastruktur sorgt für höchsten Wohnkomfort im Alltag: Supermärkte, Apotheken, Bildungs- und Betreuungseinrichtungen sowie Ärzte befinden sich in unmittelbarer Nähe und sind bequem zu Fuß erreichbar. Darüber hinaus sorgen regelmäßige Märkte, kulturelle Events und saisonale Veranstaltungen für eine lebendige Atmosphäre direkt vor der Haustüre.
Nur wenige Gehminuten entfernt eröffnet sich mit den Donauauen ein weitläufiger Natur- und Erholungsraum. Die Nähe zur Donau schafft ideale Voraussetzungen für sportliche Aktivitäten, entspannte Spaziergänge oder ausgedehnte Radtouren und bietet damit einen attraktiven Kontrast zum Stadtleben.
Auch verkehrstechnisch ist der Standort hervorragend positioniert. Der Bahnhof von Tulln ist schnell erreichbar und gewährleistet eine komfortable Anbindung in Richtung Wien sowie in die umliegenden Regionen. Die Verbindung aus urbaner Infrastruktur, historischem Flair und naturnahem Umfeld macht diese Adresse besonders attraktiv.
Eine Wohnlage, die zentrale Urbanität, optimale Nahversorgung und hohe Lebensqualität harmonisch miteinander verbindet.
Die ausgezeichnete Infrastruktur sorgt für höchsten Wohnkomfort im Alltag: Supermärkte, Apotheken, Bildungs- und Betreuungseinrichtungen sowie Ärzte befinden sich in unmittelbarer Nähe und sind bequem zu Fuß erreichbar. Darüber hinaus sorgen regelmäßige Märkte, kulturelle Events und saisonale Veranstaltungen für eine lebendige Atmosphäre direkt vor der Haustüre.
Nur wenige Gehminuten entfernt eröffnet sich mit den Donauauen ein weitläufiger Natur- und Erholungsraum. Die Nähe zur Donau schafft ideale Voraussetzungen für sportliche Aktivitäten, entspannte Spaziergänge oder ausgedehnte Radtouren und bietet damit einen attraktiven Kontrast zum Stadtleben.
Auch verkehrstechnisch ist der Standort hervorragend positioniert. Der Bahnhof von Tulln ist schnell erreichbar und gewährleistet eine komfortable Anbindung in Richtung Wien sowie in die umliegenden Regionen. Die Verbindung aus urbaner Infrastruktur, historischem Flair und naturnahem Umfeld macht diese Adresse besonders attraktiv.
Eine Wohnlage, die zentrale Urbanität, optimale Nahversorgung und hohe Lebensqualität harmonisch miteinander verbindet.
Auswahl ändern
Anbieter

Anbieter
Montana Chambas
INFINA Credit Broker GmbHTelefon
+43 699 17...

Anbieter kontaktieren
Downloads zum Objekt