Einmalige Citylage - Geschäftslokal in der Spiegelgasse!
1010 Wien, Innere Stadt, Spiegelgasse









82,61 m²1 Räume€ 4.990,00
Objektinformation
Kosten
Gesamtbelastung (netto)€ 4.990,00
Summe Miete (netto)€ 4.824,78
Betriebskosten (netto)€ 165,22
Provision
3 Bruttomonatsmieten zzgl. 20% USt.
Kautionshinweis
€ 17.964,00
Vertragsart
, Miete , befristet
Nutzfläche
82,61 m2 (1 Zimmer)
Bauart
Altbau
Energie
HWB134,8 kWh/m²
HWB-KlasseD
fGEE1,53
fGEE-KlasseC
Energieausweis bis2032-12-06
Verfügbar
ab sofort
Beschreibung
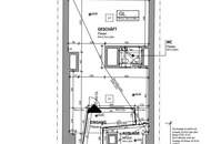
Ein branchenfreies Geschäftslokal im Herzen des 1. Wiener Gemeindebezirks.
An einer der nobelsten Adressen der Stadt präsentiert sich diese Gewerbeimmobilie mit einer Nutzfläche von ca. 83 m².
Raumaufteilung:
+ 1 Raum
+ Toilette
+ große Auslagenfläche
Dieses Objekt bietet viele Gestaltungsmöglichkeiten. Ob Sie hier mit einer Boutique oder einer Galerie/einem Atelier das Lokal zum Leben erwecken möchten, liegt in Ihrer Hand.
Wichtiger Hinweis:
Die monatliche Gesamtbelastung von € 4.990,00 ist inkl. BK, jedoch exkl. USt > Endpreis € 5.988,00
An einer der nobelsten Adressen der Stadt präsentiert sich diese Gewerbeimmobilie mit einer Nutzfläche von ca. 83 m².
Raumaufteilung:
+ 1 Raum
+ Toilette
+ große Auslagenfläche
Dieses Objekt bietet viele Gestaltungsmöglichkeiten. Ob Sie hier mit einer Boutique oder einer Galerie/einem Atelier das Lokal zum Leben erwecken möchten, liegt in Ihrer Hand.
Wichtiger Hinweis:
Die monatliche Gesamtbelastung von € 4.990,00 ist inkl. BK, jedoch exkl. USt > Endpreis € 5.988,00
Mehr
Weitere Preisinformationen
- Sonstige Preisangaben* Die monatl. Gesamtbelastung von € 4.990,00 ist inkl. BK, jedoch exkl. USt > Endpreis € 5.988,00
Auswahl ändern
Anbieter

Anbieter
Hannes Dobnikar
Immovent GmbHTelefon
+43 (0)664 344...

Anbieter kontaktieren
Downloads zum Objekt