Geschäftslokal, Gewerbeimmobilien, Souterrain Sanierungsbedürtig
1170 Wien, Hernals



































183,73 m²4 Räume€ 269.900
Objektinformation
Kosten
Kaufpreis€ 269.900
Betriebskosten (netto)€ 402,89
Provision
3% des Kaufpreises zzgl. 20% USt.
Vertragsart
, Kauf
Nutzfläche
183,73 m2 (4 Zimmer)
Bauart
Altbau: 1900
Energie
HWB151,2 kWh/m²
HWB-KlasseE
fGEE2,59
fGEE-KlasseE
Energieausweis bis2023-02-06
Verfügbar
ab sofort
Beschreibung
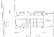
Zum Verkauf steht ein Objekt mit ca. 183m2. Souterrain
Büroräumlichkeiten, Praxis, Ordination, Werkstatt oder für Sportaktivitäten
Das Objekt wird unsaniert Verkauft, keinerlei Gewährleistungsansprüche für die Käuferseite.
Es sind mehrere Räume, eine Teeküche (nur Anschlüsse sind vorhanden) sowie eine Toilette.
Direkt ins Büroräumlichkeiten im Erdgeschoß, Straßenseitige Eingang!
* mehrere Räume
* Teeküche
* Eine Toilette
* Raumhöhe ist ca. 3m.
* Starkstrom
* Gasetagenheizung
Alle Flächen sin..
Büroräumlichkeiten, Praxis, Ordination, Werkstatt oder für Sportaktivitäten
Das Objekt wird unsaniert Verkauft, keinerlei Gewährleistungsansprüche für die Käuferseite.
Es sind mehrere Räume, eine Teeküche (nur Anschlüsse sind vorhanden) sowie eine Toilette.
Direkt ins Büroräumlichkeiten im Erdgeschoß, Straßenseitige Eingang!
* mehrere Räume
* Teeküche
* Eine Toilette
* Raumhöhe ist ca. 3m.
* Starkstrom
* Gasetagenheizung
Alle Flächen sin..
Mehr
Weitere Preisinformationen
- Sonstige Kosten€ 52,07
Auswahl ändern
Anbieter

Anbieter
Milot Bunjaku
IMMO AGENCY GmbHTelefon
+43 699 190 ...

Anbieter kontaktieren