Nach Region
BurgenlandKärntenNiederösterreichOberösterreichSalzburgSteiermarkTirolVorarlbergWienIn Immobilien Investieren
Kleinobjekte zu kaufenWohnungen zu kaufenGrundstücke zu kaufenWB IMMOAGENTUR e.U. Immobilien
WB IMMOAGENTUR e.U.

- Standort
- Berggasse 4/Top 5
1090 Wien, Alsergrund
- TELEFON
- +43 (0) 664 2630775
- WEBSITE
- https://www.wbimmo.at/
- bermann@wbimmo.at

Gewerbeobjekt 1190 Wien, Döbling
Büro - Geschäftslokal im Erstbezug!
Neues Haus - tolle LageZum Verkauf gelangt dieses rund 76 m² große Geschäftslokal/BüroAufteilung Top 1: * großer Raum * WC mit Handwasch * Küchenvorbereitung * AbstellraumAusstattung: * Fußbodenheizung
1 Räume € 249.000

Büro 1190 Wien, Döbling
Büro - Geschäftslokal im Erstbezug!
Neues Haus - tolle LageZum Verkauf gelangt dieses rund 76 m² große Geschäftslokal/BüroAufteilung Top 1: * großer Raum * WC mit Handwasch * Küchenvorbereitung * AbstellraumAusstattung: * Fußbodenheizung
1 Räume € 249.000

Büro 1050 Wien, Margareten
835m² TOP Lage, Barrierefrei, Saniert, Große Schaufenster-Front & Raumhöhe
+ Perfekt für Cafés, Ärzte, Supermärkte, Ausstellungsflächen & Veranstaltungen.+ Gliederung: 640m² Geschäft & 145m² Büroräume/Atelier, 50m² Lager, Personalraum mit Küche, drei WC- Anlagen, diverse Neben- und Lagerräume.+
835 m² 9 Räume € 12.050,00

Gewerbeobjekt 1050 Wien, Margareten
835m² TOP Lage, Geschäft & Büro, Saniert, Große Schaufenster-Front & Raumhöhe
+ Perfekt für Cafés, Ärzte, Supermärkte, Ausstellungsflächen & Veranstaltungen.+ Gliederung: 640m² Geschäft & 145m² Büroräume/Atelier, 50m² Lager, Personalraum mit Küche, drei WC- Anlagen, diverse Neben- und Lagerräume.+
835 m² 9 Räume € 12.050,00

Einfamilienhaus 2542 Kottingbrunn
Gepflegtes Einfamilienhaus, sonnige Ruhelage, sofort verfügbar
Dieses gemütliche Einfamilienhaus bietet im Erdgeschoß auf 150 m² eine ideale Raumaufteilung mit zwei Schlafzimmern sowie einem großen Wohnzimmer neben der schönen Küche. Darüber hinaus gibt es auch im Keller einen gemütlich ausgebauten
150 m² 4 Zimmer € 420.000

Eigentumswohnung 2410 Hainburg a.d. Donau
Provisionsfrei !! NEUBAU ~60m² + 13m2 Loggia + Garage + Blick auf den Braunsberg
Zum Verkauf kommt eine 2 Zimmer- Wohnung mit großer Loggia, eigenem Garagenplatz, Küche, Bad, WC+ Von der Loggia hat man einen herrlichen Blick auf den Braunsberg+ Der Boden ist vom Fachmann mit hochwertigen Großformat-Fliesen ausgestattet+
59,83 m² 2 Zimmer € 270.000

Einfamilienhaus 7051 Großhöflein
Panormablick von Haus & Garten, 200m² Wfl
Zum Verkauf kommt ein Einfamilienhaus mit 2 Etagen.+ 6 Zimmer auf 2 Etagen, 2 Küchen, 2 WCs, 2 Bäder und ein schöner Garten.+ Geheizt wird mittels Gas-Zentralheizung, ein Allesbrenner ist ebenfalls vorhanden.Raumaufteilung:+Erdgeschoss:
200 m² 6 Zimmer € 450.000

Mietwohnung 2424 Zurndorf
58m² Wohnfläche, 2 Zimmer mit Garten in Zurndorf Nähe Neusiedl & Bratislava & Nickelsdorf
Zur Vermietung kommt eine helle und freundliche Wohnung mit Garten und Parkplatz in Ruhelage.+ Die Wohnung hat eine große Wohnküche mit ca. 29m² Garten,Schlafzimmer, Bad mit Dusche & WC, Diele und einen eigenen Stellplatz, es gibt einen gemeinsamen
58 m² 2 Zimmer € 762,00

Büro 1150 Wien, Rudolfsheim-Fünfhaus
Büro plus Lagereinheit. Bestlage Pelzgasse!
Zur Vermietung gelangen eine Büro- und Lagereinheit mit insgesamt ca. 155 m² Fläche.AUFTEILUNG BÜRO: * Eingangsbereich * 2 WC * vollständige Küche * 2 gleichwertige, zentral begehbare ZimmerAUFTEILUNG LAGER:
154 m² 5 Räume € 1.799,40

Grundstück 2421 Kittsee
SUPER Baugrundstück, 2 oder 3 Etagen, Ausrichtung SÜD in Kittsee
Exklusives Angebot: Fünf ideale Baugrundstücke - 483 m² mit IS-Anschluss und Südausrichtung befindet sich in der ursprünglichen Bebauung des Dorfes Kittsee. Die Bauordnung erlaubt den Bau eines dreigeschossigen Einfamilienhauses
483 m² € 160.000

Eigentumswohnung 2413 Edelstal
BESTER PREIS !! wunderschöne Wohnung mit Terrasse & Garten
Tolle Wohnlage am Land- 3 Wohnungen, 3 Zimmer-Terrasse, Garten-Parkplatz – Ruhelage - OrtsendeAm Ortsrand von Edelstal, ist ein Wohnprojekt von einer kleinen Wohnhausanlage mit 3 Wohnungen sowie 6 Freistell- Parkplätzen und je nach Stockwerk mit
84 m² 3 Zimmer € 349.000

Eigentumswohnung 2293 Marchegg
BESTER PREIS !! wunderschöne 4 Zimmer Wohnung mit Terrasse
Diese wunderschöne Wohnung mit Riesen-Terrasse befindet sich in Marchegg, ein Neubau mit Personenaufzug. 4 Zimmer mit einer Wohnfläche von 88m² & 45m² Terrasse, Fußbodenheizung & Klimaanlagen
88,53 m² 4 Zimmer € 299.999

Mietwohnung 2473 Potzneusiedl
Singlewohnung + Ruhelage + Garten + Garage + Pool optional
+ Separater Eingang + Neue Alufenster & Eingangstür + Neue Küche + Neue Böden + Neues Bad+ Es gibt eine 5kw Daikin Split-Klimaanlage mit 2 Comfort-Innengeräten zum Kühlen und angenehm schnellem Aufheizen, einen Holz-Kaminofen und eine
69,43 m² 2 Zimmer € 770,00

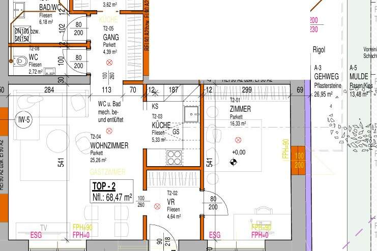
Eigentumswohnung 2425 Nickelsdorf
Erstbezug, 68m² WFL, 30m² Wohnküche, SZ, PKW-Stellplatz optional
Zum Verkauf kommt ein Erstbezug 68m² in Ruhelage, Ost-Süd-Ost Ausrichtung+ Wohnküche ~30m² + SZ, Badezimmer 7m², WC, VR, 1 PP+ belagsfertig oder gegen Aufpreis von 21.000.- € schlüsselfertig (2ter PP = 5000.- €)+ Gebaut wird
68,47 m² 2 Zimmer € 150.634

Gewerbeobjekt 1090 Wien, Alsergrund
Bestlage Berggasse! Modernes Geschäftslokal mit 3 Eingängen!
Exklusiv und freibleibend bieten wir an:Dieses modern ausgestattete 120 m² große 3 Zimmer Geschäftslokal (Büro) mit sämtlichen Nebenräume präsentiert sich als wahres Schmuckstück.DIE LAGE: Die Berggasse ist heute vor allem
120 m² 3 Räume € 590.000

Büro 1090 Wien, Alsergrund
Bestlage Berggasse! Modernes Büro mit 3 Eingängen!
Exklusiv und freibleibend bieten wir an:Dieses modern ausgestattete 120 m² große 3 Zimmer Büro (Geschäftslokal) mit sämtlichen Nebenräume präsentiert sich als wahres Schmuckstück.DIE LAGE: Die Berggasse ist heute vor allem
120 m² 3 Räume € 590.000

Grundstück 2473 Potzneusiedl
Quadratisches Baugrundstück in absoluter Ruhelage, Herrlicher Altbaumbestand
Zum Verkauf kommt ein ruhiges und sonniges Grundstück in Potzneusiedl+ Das Grundstück ist weitestgehend quadratisch mit knapp 1500m². Die Zufahrt mit zusätzlich 160m² bis 200m² (je nach Breite) wäre durch die Einebnung eines Altbaus mit Straßenanbindung
1.740 m² € 190.000

Massivhaus 1220 Wien, Donaustadt
2 hochmoderne Einfamilienhäuser mit allen Raffinessen! Vollunterkellert!
Exklusiv und freibleibend bieten wir dieses prächtige Projekt an:DER CHARAKTER: Gelegen in herrlicher, grüner Siedlungslage des 22. Bezirks, im Bezirksteil Hirschstätten präsentieren sich 2, mit hoher Qualität und modernster
171 m² 5 Zimmer € 950.000

Grundstück 2473 Prellenkirchen
BESTPREIS!!! Sonnig + Ruhig ! Baugrundstück in Prellenkirchen
Zum Verkauf kommt ein schönes Baugrundstück in Prellenkirchen+ Geeignet für ein Doppelhaus+ Genaue Daten erhalten Sie im ExposeErgänzungsabgabe: € 10.000.- Immobilientreuhänder Walter Pap, Tel: 0699 116 484 32Der
504 m² € 115.000

Dachgeschosswohnung 1180 Wien, Hernals
Kein Gas mehr! Top DG Wohnung mit Balkon - 2 großzügige Zimmer, alles auf einer Ebene! Luft-Wasserwärmepumpe, Klima und Photovoltaik!
Exklusiv und freibleibend bieten wir dieses prächtige Projekt an:Besuchen Sie auch unsere Projekthomepage: WWW.STERN3.ATDER CHARAKTER:Wer Vermögenswerte, Lebens- und Wohnqualität schaffen will, kommt an der Sternwartestraße 3 nicht
2 passende Objekte
74-121 m² 2-3 Zimmer € 810.000-1.325.000
Eigentumswohnung 2425 Nickelsdorf
Erstbezug Südwest-Ausrichtung, 85m² WFL + Balkon 9m², 24m² WZ mit offener Küche & 3 Zimmer, 60m² PKW-Stellplatz
Zum Verkauf kommt ein Erstbezug SW mit Balkon + PP vom Top-Bauträger in Ruhelage+ Wohnküche 24m² Zimmer mit 14m², 12m² & 11m², Badezimmer 6m², Schrankraum 4m², Vorraum 4m², WC+ belagsfertig oder gegen Aufpreis von 26k schlüsselfertig+
84,98 m² 4 Zimmer € 196.955

Massivhaus 1220 Wien, Donaustadt
Schlüsselfertig! Top modernes Mittelreihenhaus auf Eigengrund in bester Lage beim Schillerwasser! Deckenkühlung, Photovoltaik und Smart Home System inklusive!
Exklusiv und freibleibend bieten wir dieses prächtige Projekt an:DER CHARAKTER:Wer Vermögenswerte, Lebens- und Wohnqualität schaffen will, kommt an diesem TOP PROJEKT nicht vorbei. Gelegen in herrlicher Grünlage
2 passende Objekte
129-132 m² 5 Zimmer € 895.000-910.000
Einfamilienhaus 7072 Mörbisch am See
Stockhaus mit Gästezimmern in Mörbisch am Neusiedlersee
Zum Verkauf kommt sympathisches Haus mit 2 Etagen und insgesamt ca. 220m² Wohnfläche in Mörbisch am Neusiedlersee.Alle Zimmer sind hell und freundlich, der Innenhof ist sonnenverwöhnt, insgesamt sind Ausrichtung und Lage zur Sonne und innerhalb
230 m² 9 Zimmer € 199.000

Eigentumswohnung 8970 Schladming
Rendite - Anlage - Zusatzeinkommen ! Hauptplatz Schladming: 106m², 4 Zimmer inkl. Parkplatz
Vollausgestattetes Appartement im 1. Obergeschoß * 2 Schlafzimmer mit Doppelbetten, 1 Zimmer davon mit eigenem Bad & WC * Wohnküche mit Loggia, vollausgestattet mit Kaffeemaschine, E-Herd, Backofen, Mikrowelle, Kühlschrank,
106 m² 4 Zimmer € 1.149.000

Einfamilienhaus 7442 Lockenhaus
Fernblick 3 Geschoße, über 200m² WNFL + 100m² Lager + 4300m² Eigengrund
Zum Verkauf kommt ein Haus in bester Lage mit großem Garten, Wald & Blick auf die Burg Lockenhaus Im Hauptgeschoß gibt es rund 145m² Wohnfläche. Alle Zimmer sind über die einladende Diele mit 17m² zentral begehbar. Das